Ver Tour Virtual
- $6,000,000 MXN En Venta
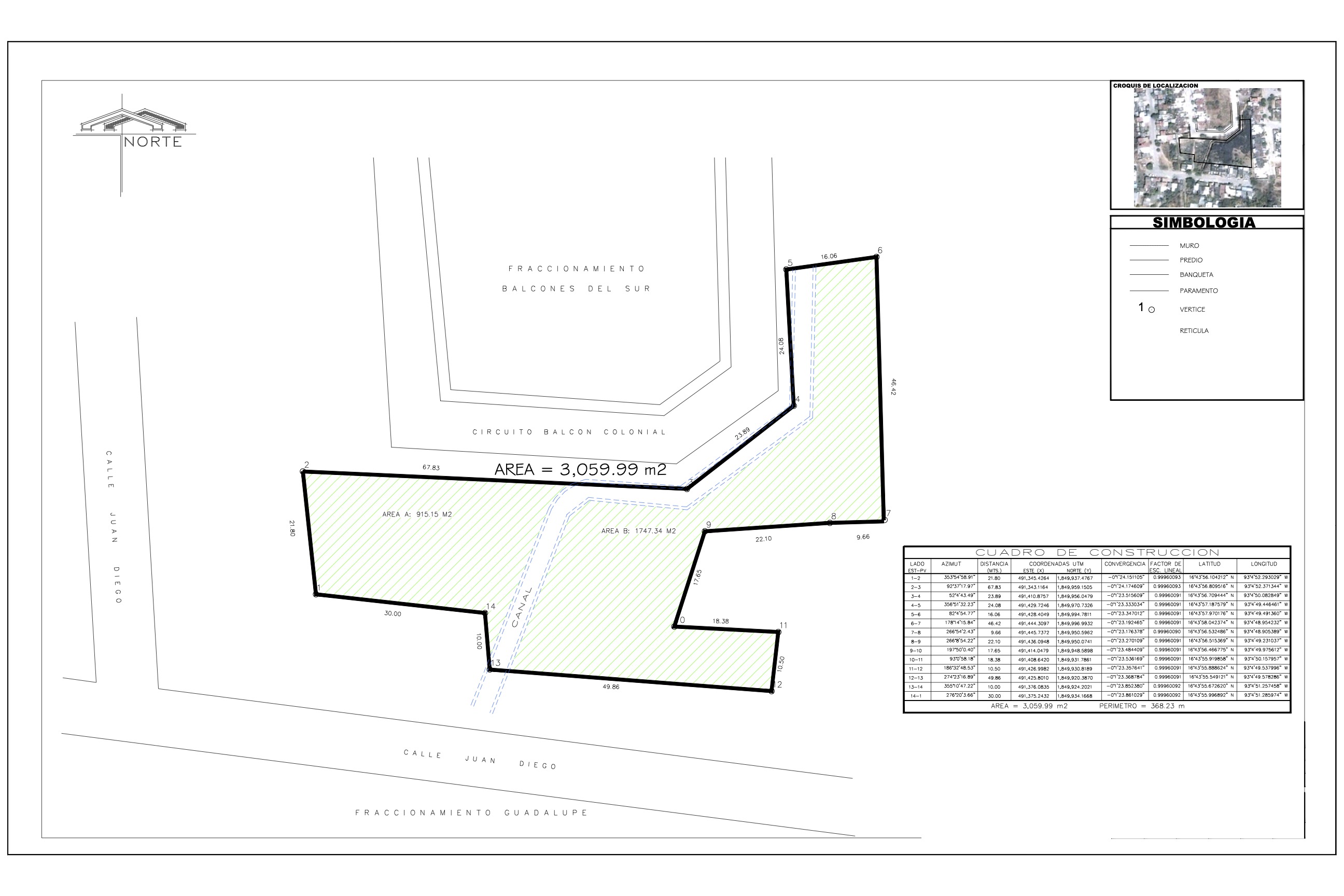
- 3,059 m² de terreno
Detalles
- Tipo: Terreno
- ID: EB-VH4190
Descripción
Cuenta con uso de suelo Habitacional Mixto (HM-2), que permite desarrollos de densidad media. La normativa vigente establece COS 0.75, lo que permite ocupar hasta aproximadamente 2,295 m² en planta baja, y CUS 2, que posibilita construir hasta 6,100 m² en total, distribuidos en varios niveles según el diseño que autorice desarrollo urbano del proyecto.
La calle sobre laque se encuentra el terreno cuenta con servicios de agua, energía eléctrica y drenaje ademas de estar pavimentado. Incluye un canal pluvial municipal construido y autorizado, el cual no afecta el potencial constructivo, ya que la ocupación permitida (COS y CUS) se calcula sobre la superficie total escriturada. Este elemento contribuye al control de escurrimientos y podría considerarse para integrar al diseño del proyecto como área de aportación.
Tour virtual (copiar y pegar): https://storage.net-fs.com/hosting/8532766/2/
Adjuntados
Ubicación












